黑角舞蹈教室
-Dance Studio Design
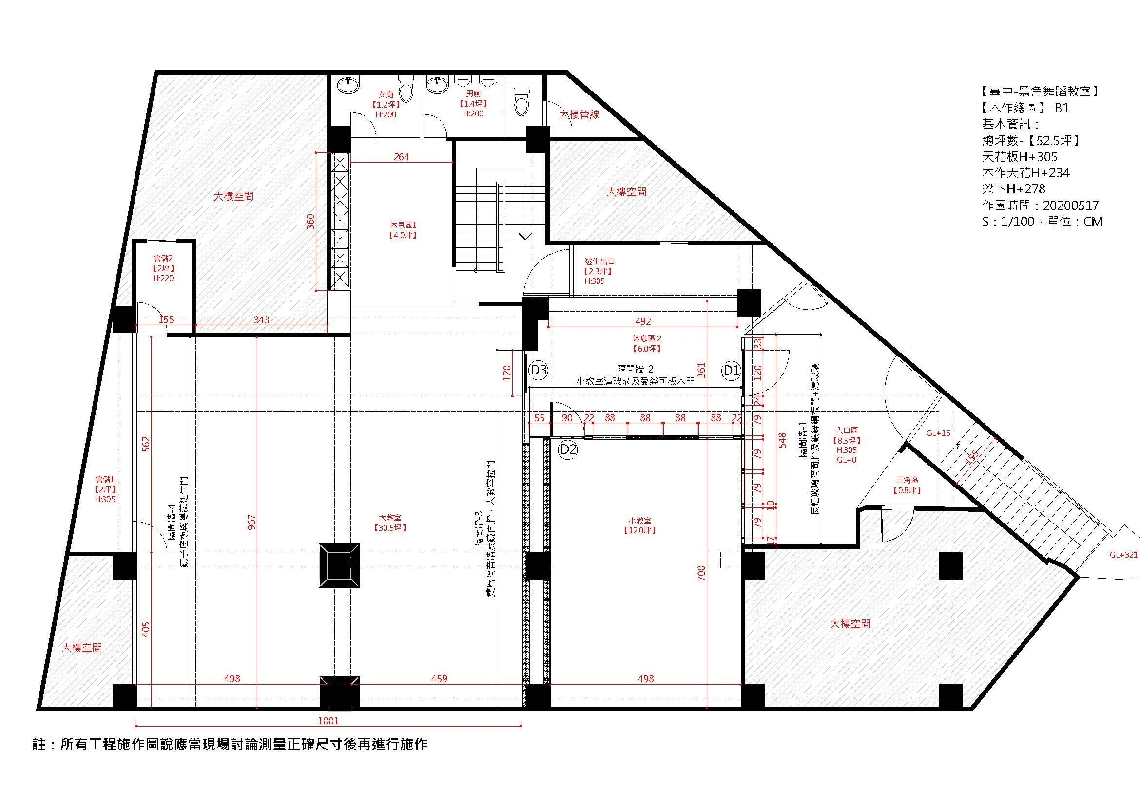
面積|52.5坪 年份|2020 地點|台中・台灣黑角舞團的教室,是一處被使用密度定義的空間。
起初因為是租賃場地,討論方向以「簡易整理」為主。
這不是一次華麗的改造, 而是讓舞蹈能被安心使用、反覆練習的日常空間。

